06.04.2025

LogoML_GmbH

Mohr-Luschitz GmbH

Sanitär - Heizung - Kundendienst

64625 Bensheim
Renngrubenstraße 3
Telefon 06251-788887
Telefax 06251-788886
Firma@Mohr-Luschitz.de

Impressum

Sie möchten Ihr Badezimmer umgestalten, renovieren oder einfach verschönern?

Wir bieten Ihnen für alle Fälle die passende Lösung!

Mit unserem erfahrenen Team garantieren wir Ihnen indivuelle Badberatung und -gestaltung, auf Wunsch selbstverständlich auch computeranimiert in 2D, bis hin zur professionellen Ausführung Ihres Traumbades. Zusammen mit unseren Partnerfirmen sanieren wir termingerecht Ihr Bad, Ihre Wohnung oder Ihr komplettes Haus, mit nur einem Ansprechpartner.

In der Ausstellung unseres Großhandelspartners ( Richter+Frentzel und Rath KG  ) finden Sie ständig aktuelle Keramik-Serien, Dusch- und Badewannen, Spiegel, Küchenarmaturen und Accessoires namhafter Hersteller. Produkte aus dem Wellness-Bereich, wie Dampf-duschen oder Whirlpools, gehören ebenso zu unserem Repertoire wie Senioren- und behindertengerechte Bäderausstattungen.

Weiterhin stehen wir Ihnen bei Fragen zur Wasseraufbereitung oder Regen-Wassernutzung gerne zur Verfügung.

Unser Kundendienst übernimmt fachmännisch sämtliche Wartungsarbeiten sowie kleine und große Reparaturen an Ihrer
Sanitär - Installation. 
Firma@Mohr-Luschitz.de

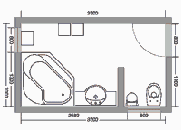
Gerne planen wir mit Ihnen Ihr neues Bad.
Sei es komplett neu, durch Umbau oder teilweise Erneuerung und durch Umgestaltung.
Durch unser Computerunterstützte 2D Badplanung können wir Ihnen schon vorher zeigen,
wie Ihr Badezimmer oder Toilette fertig aussieht.
Natürlich erhalten Sie ein verbindliches Angebot zum günstigen Festpreis.
Lassen Sie sich von uns beraten.  Firma@Mohr-Luschitz.de



Keramag

 

 

Hansa-canyonHansa-vierlochHansa



Wir liefern und reparieren Armaturen aller namhaften Firmen, wie

Hansa   Grohe / DAL   Hansgrohe   Ideal-Standart   Eichelberg   Concept  und einige mehr...

Sie möchten, oder müssen Ihre Sanitäranlage sanieren?

Gerne stehen wir Ihnen hier mit Rat und Tat zur Seite!

 

Sei es, dass Sie durch einen Wasserrohrbruch oder nur wegen allgemeiner Sanierungsmaßnahmen an die Neugestaltung Ihrer Sanitärinstallation denken,
sind wir der richtige Ansprechpartner für Sie.

Wenn es um die Reparatur eines Rohrbruchs geht, und die schadhafte Stelle noch gesucht
werden muss, so stehen wir mit entsprechendem Ortungsgerät für Sie bereit.
Natürlich entsorgen wir den anfallenden Bauschutt und reparieren umgehen den Schaden.
Entsprechende Protokolle mit Digitalfotos werden für Ihre Versicherung angefertigt und die
Abrechnung kann dann auch direkt mit Ihrer Versicherung erfolgen. Eine saubere Arbeit, inklusive der Entsorgung des anfallenden Bauschutts, können Sie von uns erwarten.

Wir reparieren für Sie alle Wasserführenden Leitungen in und vor dem Haus,
also auch alle Abfluss- und Regenwasserrohre.

Lassen Sie sich von uns beraten.  Firma@Mohr-Luschitz.de

[Mohr-Luschitz] [Heizung] [Online-Angebot] [Sanitär] [Wartung] [Propangas] [Wellness] [Kontakt] [Impressum] [Datenschutz] [Über uns]

.